This project was aimed at studying insect free flight. The idea was to provide odor cues and track insect flight in the windtunnel. Being right next to the Aerospace building, I promptly hurried off to talk to people in the low-speed wind tunnel lab. They were more than happy to help and I was ecstatic until we started talking numbers. Turns out, in aerospace terms, ‘low-speed’ means 50-100 m/s! The wasps we wanted to study only fly at about 5 m/s max. So, the only option was to make a wind tunnel ourselves.

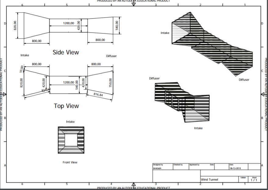
The project posed multiple challenges especially since I had little to no experience in CAD and fluid mechanics before this. Learning on the go, I worked out the intake dimensions, length etc to maintain a laminar flow. I designed it in AutoDesk Inventor and fabricated it out of acrylic using basic power tools(it’s easier than it looks). It is still seeing active research use in RMB lab CES, IISc.

I designed the wind tunnel to have a low wind speed of ~0.5-5 m/s which is right in the wasp flight speed ballpark. But I had not taken into account that the reported flow rate of the duct fan was based on resistance provided by the duct vents! The wind tunnel itself posed little to no resistance and the whole thing was running much too fast. We tried regulating the input voltage, giving low power to the fan but the motor just stalled. One fine day, I decided to just flip the blades on the fan, making the whole thing a lot less efficient; and voila! 0.5-5 m/s. It was surprisingly perfect. Jugaad engineering really came through for me that day.
I would like to thank PhD candidate Vignesh V. for inspiring this project as well as for the helpful discussions, and continued moral support.
